














← Retour aux résultats
Bas de station. Appt 2 pièces duplex. 8 pers.
Neiges D'or A01 Les Saisies et alentours
8 voyageurs
1 chambre
2 salles d'eau
53 m²
Petite résidence située en bas station, en contre bas de l'avenue principale, proche des télésièges des Carrets et rassemblements ESF. Magasin de sport et supérette à proximité.
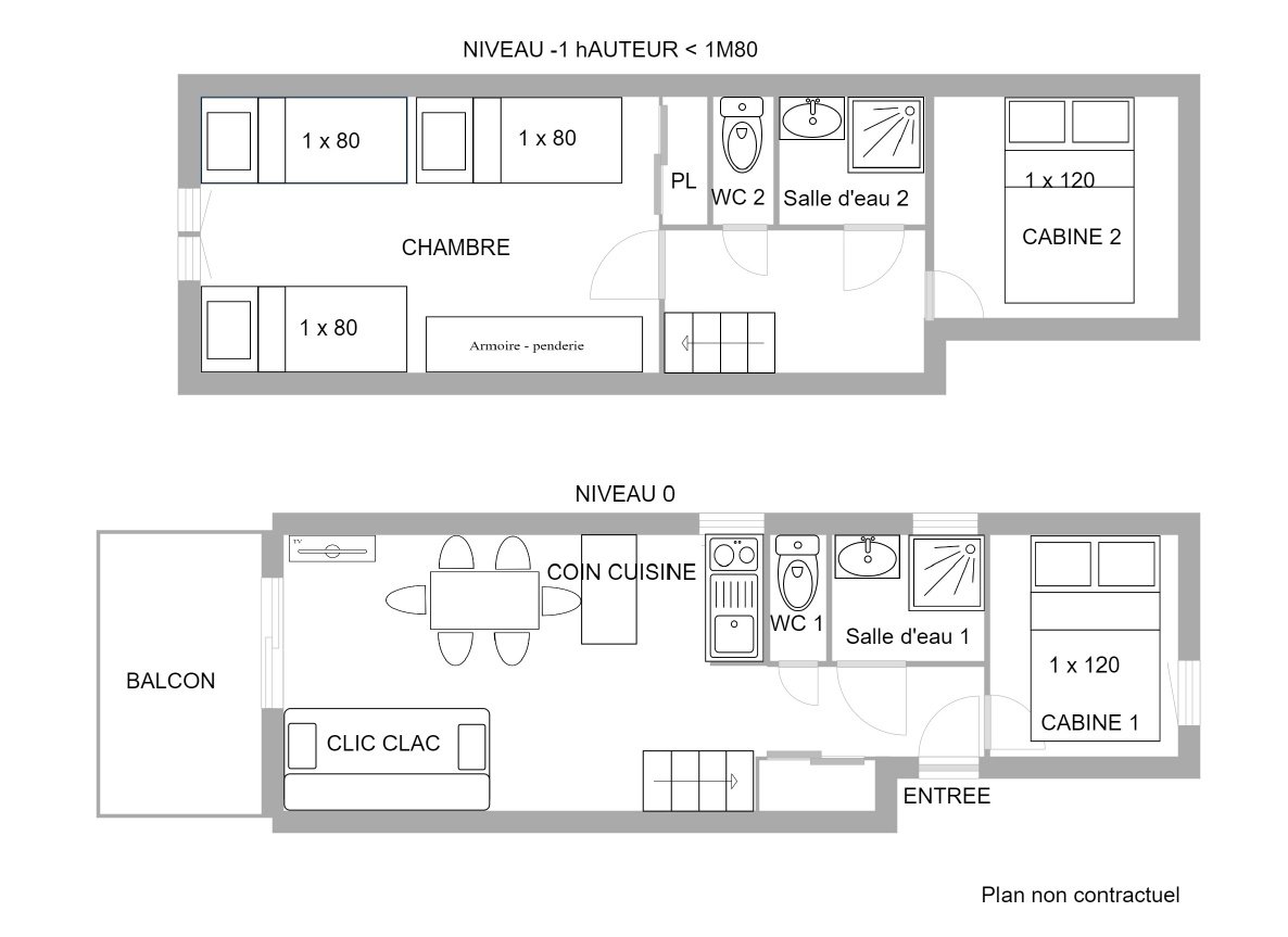
Appartement 2 pièces duplex inversé double cabine situé au rez-de-chaussée surélevé de la résidence sans ascenseur (2 étages à descendre), orienté sud avec balcon.
L'appartement se compose d'un séjour avec un canapé lit 140 et une kitchenette équipée ouverte, d'une cabine avec un lit 120, d'une salle d'eau et wc séparé au niveau 0. Au niveau -1 se trouve une chambre avec 3 lits 80, une cabine borgne avec un un lit 120, une salle d'eau et WC séparé.
Attention hauteur au niveau -1 : 1m75 max sous plafond
Appartement 2 pièces duplex inversé double cabine situé au rez-de-chaussée surélevé de la résidence sans ascenseur (2 étages à descendre), orienté sud avec balcon.
L'appartement se compose d'un séjour avec un canapé lit 140 et une kitchenette équipée ouverte, d'une cabine avec un lit 120, d'une salle d'eau et wc séparé au niveau 0. Au niveau -1 se trouve une chambre avec 3 lits 80, une cabine borgne avec un un lit 120, une salle d'eau et WC séparé.
Attention hauteur au niveau -1 : 1m75 max sous plafond
Voir plus
Voir moins
Équipements
Visite virtuelle
426.93
0
Plus de détails
- Four combiné micro-ondes
- Plaque de cuisson
- Aspirateur
- Cafetière électrique
- Four
- Lave-vaisselle
- Réfrigérateur table top
Localisation
Nos autres logements