













← Retour aux résultats
Centre station. Appt Studio / mezz. 6 pers.
Village Bat 2 249 Les Saisies et alentours
6 voyageurs
studio
1 salle d'eau
22 m²
Résidence proche centre station, proche des commerces.
La résidence est exposée sud, face au Mont Bisanne
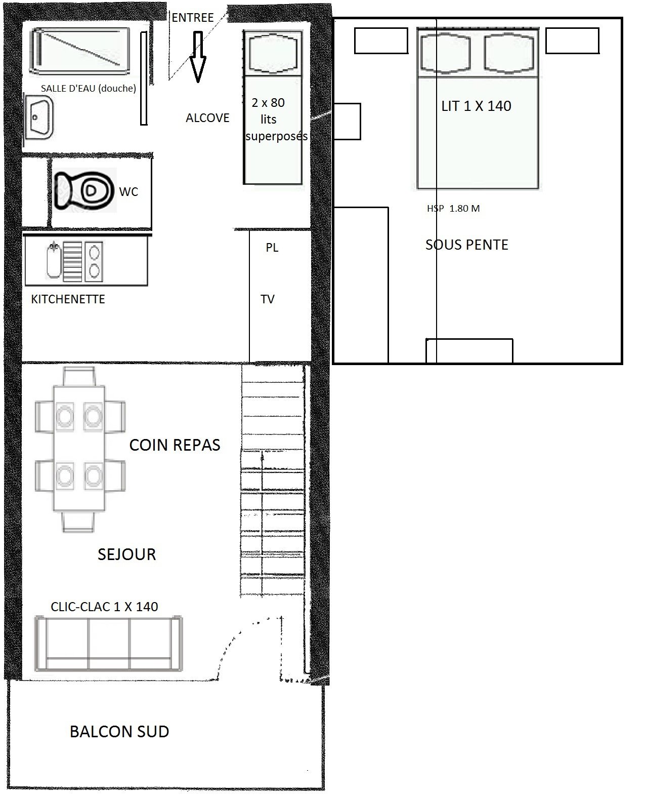
Appartement studio alcôve + sous pente situé au 4ème étage de la résidence (3 étages à monter), orienté sud, avec balcon.
L'appartement se compose d'une kitchenette équipée, d'un séjour avec canapé 140, d'une sous pente avec un lit en 140, d'une alcôve avec des lits superposés 2x80, d'une salle d'eau et d'un WC séparé. (NB: le lit supérieur d'un lit superposé est interdit aux - de 6 ans)
La résidence est exposée sud, face au Mont Bisanne
Appartement studio alcôve + sous pente situé au 4ème étage de la résidence (3 étages à monter), orienté sud, avec balcon.
L'appartement se compose d'une kitchenette équipée, d'un séjour avec canapé 140, d'une sous pente avec un lit en 140, d'une alcôve avec des lits superposés 2x80, d'une salle d'eau et d'un WC séparé. (NB: le lit supérieur d'un lit superposé est interdit aux - de 6 ans)
Appartement non accessible aux handicapés
Location classée meublé de tourisme 1 *.
Catégorie ménage: D
Encore un doute, une question ? Consulter notre FAQ
Location classée meublé de tourisme 1 *.
Catégorie ménage: D
Encore un doute, une question ? Consulter notre FAQ
Voir plus
Voir moins
Équipements

Visite virtuelle
285.69
0
Plus de détails
- Appareil à raclette
- Aspirateur
- Cafetière à dosettes
- Lave-vaisselle
- Réfrigérateur table top
- Cafetière électrique
- Four combiné micro-ondes
Localisation
Nos autres logements