














← Retour aux résultats
Bas de station. Appt 3 pièces. 6 pers.
Chalets D'emeraude Bat C C02 Les Saisies et alentours
6 voyageurs
2 chambres
2 salles d'eau
50 m²
Belle résidence de standing, à proximité de toutes commodités, à environ 1km du centre des Saisies, avec piscine intérieur chauffée et accès jacuzzi et salle de fitness gratuit (ouverts en pleine saison d'hiver et d'été situés dans le bâtiment H).
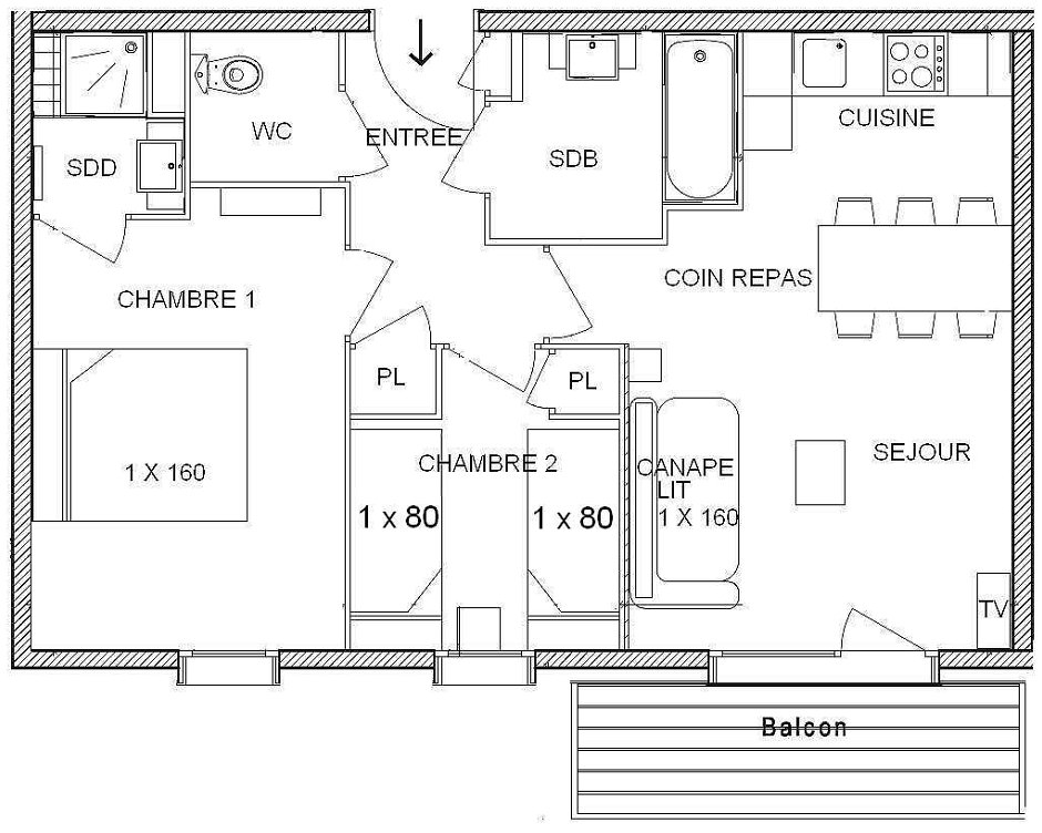
Appartement 3 pièces situé au rez de chaussée surélevé de la résidence (environ 15 marches extérieurs à monter), orienté sud avec balcon.
L'appartement se compose d'un séjour avec un canapé convertible 160, suite perentale avec lit 160, d'une chambre avec deux lits 80, d'une salle de bain et WC séparé.
La cuisine est ouverte sur le séjour.
Appartement 3 pièces situé au rez de chaussée surélevé de la résidence (environ 15 marches extérieurs à monter), orienté sud avec balcon.
L'appartement se compose d'un séjour avec un canapé convertible 160, suite perentale avec lit 160, d'une chambre avec deux lits 80, d'une salle de bain et WC séparé.
La cuisine est ouverte sur le séjour.
La piscine sera accessible du 28/06 au 30/08 et du 20/12/2025 au 11/04/2026
Catégorie ménage: I
Encore un doute, une question ? Consulter notre FAQ
Catégorie ménage: I
Encore un doute, une question ? Consulter notre FAQ
Voir plus
Voir moins
Équipements
Visite virtuelle
538.21
0
Plus de détails
- Aspirateur
- Cafetière électrique
- Lave-vaisselle
- Réfrigérateur avec freezer
- Sèche cheveux
- Bouilloire électrique
- Four combiné micro-ondes
- Plaque de cuisson
- Grille-pain
Localisation
Nos autres logements