
















← Back to results
Erwin Eckl. Appt 4 pièces. 8 ppl.
Chalet Des Cimes Batiment G G03 Les Saisies et alentours
8 guests
3 bedrooms
2 shower rooms
61 m²
Beautiful luxury residence, close to all amenities
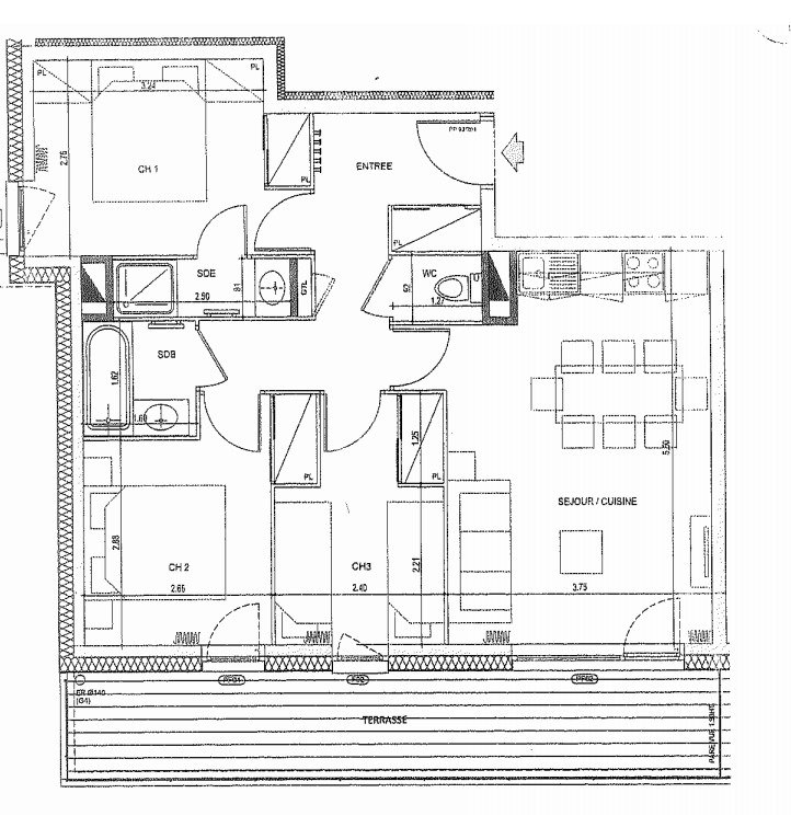
4-room apartment, located on the ground floor of the residence with lift, south-facing with balcony + covered parking space in the basement (H.1.95m; L.5.20m; L.2.60m)
The apartment has a fitted kitchen, a living room with a sofa bed (140cm), a bedroom with bunk beds (2x80cm), a second bedroom with two beds (80cm) side by side, and a third bedroom with a bed (160cm), a bathroom, a shower room and a separate toilet.
4-room apartment, located on the ground floor of the residence with lift, south-facing with balcony + covered parking space in the basement (H.1.95m; L.5.20m; L.2.60m)
The apartment has a fitted kitchen, a living room with a sofa bed (140cm), a bedroom with bunk beds (2x80cm), a second bedroom with two beds (80cm) side by side, and a third bedroom with a bed (160cm), a bathroom, a shower room and a separate toilet.
This apartment is officially classed as 3-star furnished holiday accommodation (Meublé de Tourisme).
Housekeeping category: K
Still have a question? Check out our FAQ
Housekeeping category: K
Still have a question? Check out our FAQ
Show more
Show less
Amenities

Virtual tour
700.85
0
More Details
- Parking
- Oven and Microwave
- Hotplates
- Fondue machine
- Vacuum cleaner
- Coffee machine
- Washing machine
- Dishwasher
- Fridge
Location
Our other accommodations